Описание
Характеристики
Отзывы
Описание
Печатная книга «Висячие и вантовые конструкции» в мягкой обложке, язык - русский. В книге 157 страниц, она напечатана на белой офсетной бумаге плотностью 80 г/м². Формат издания — 205x280 мм. Все книги аккуратно упаковываем в прочный трёхслойный непрозрачный картонный конверт.
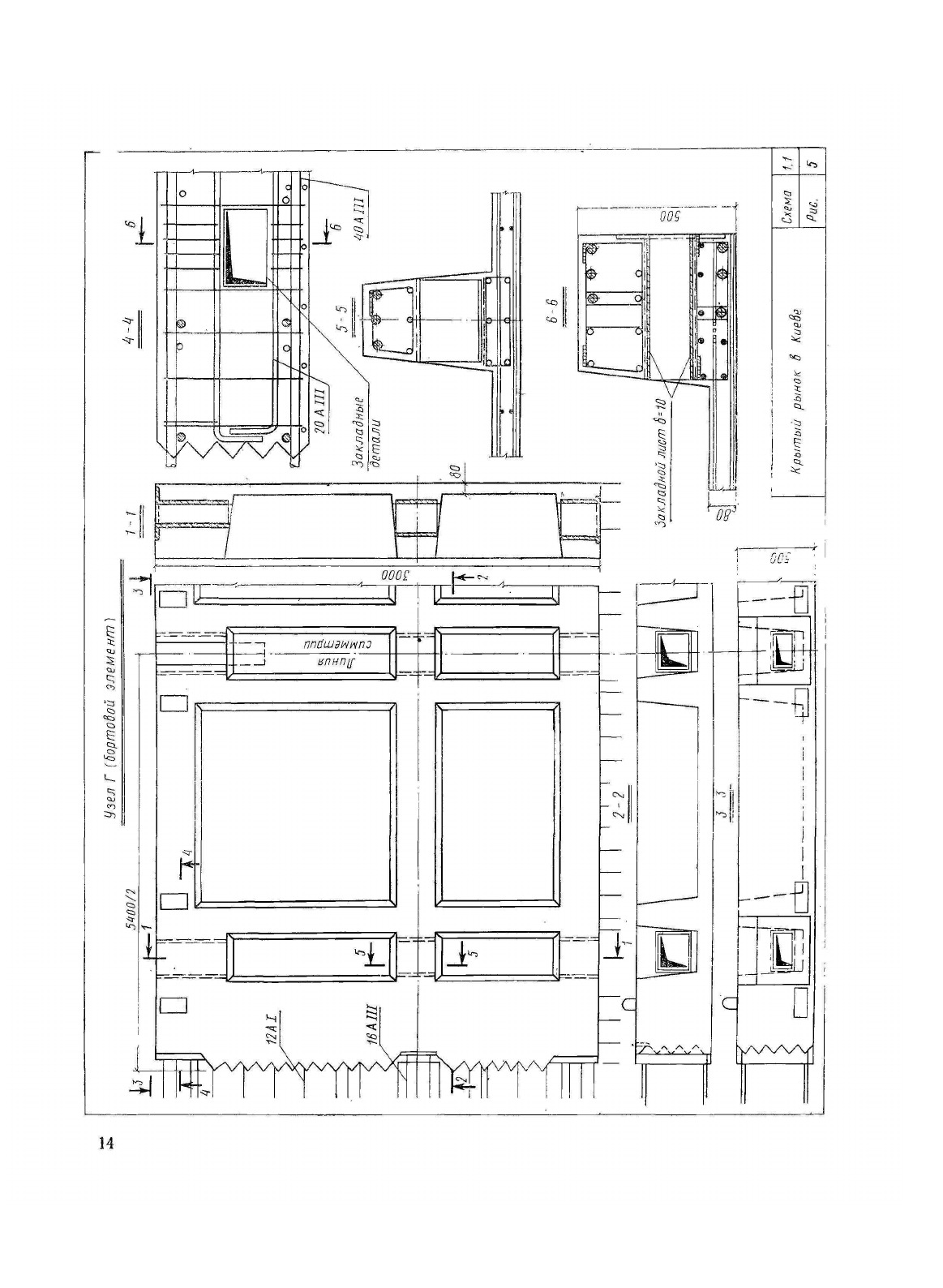
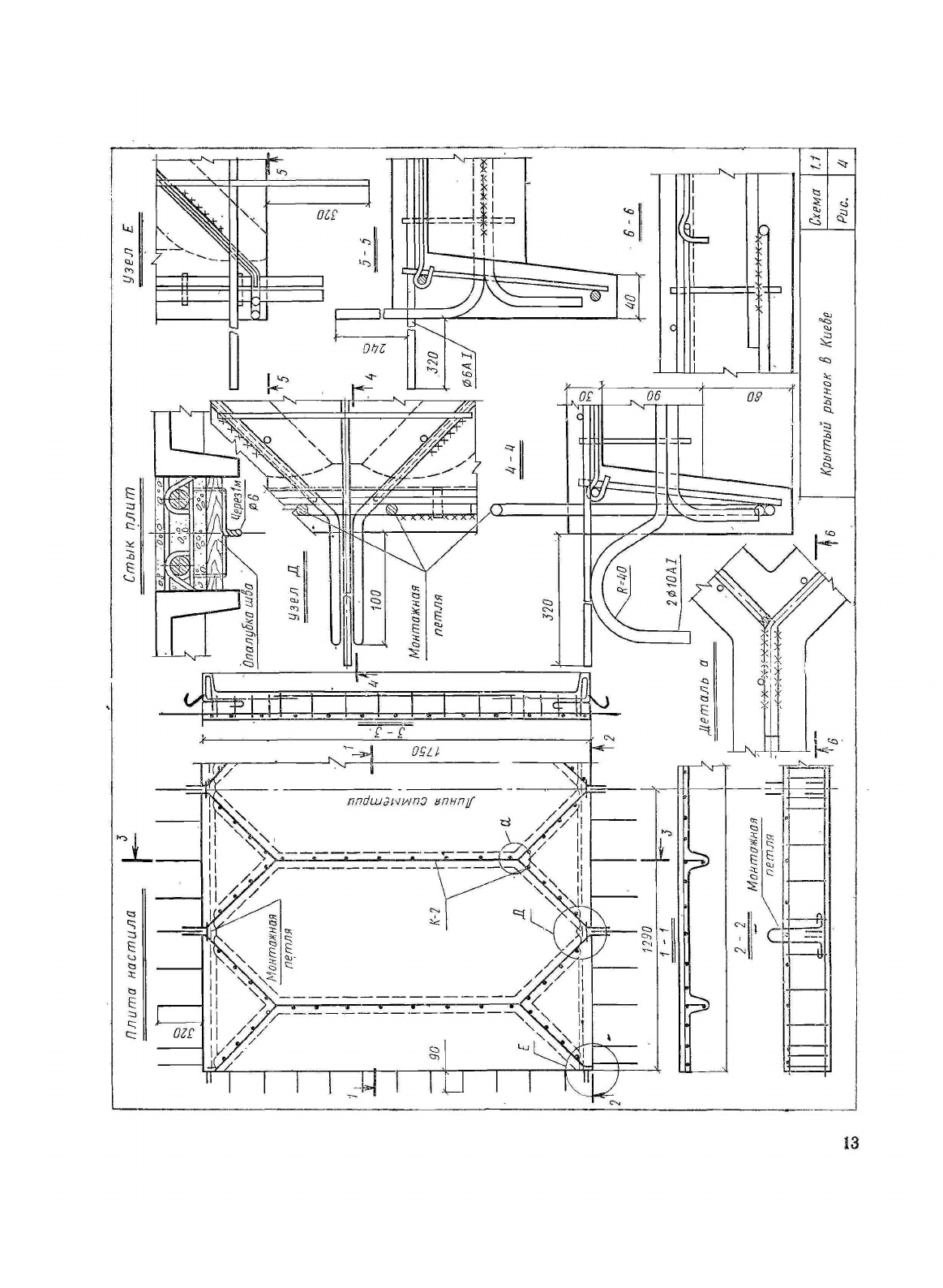
Представлены конструктивные решения висячих и вантовых покрытий общественных и производственных зданий, а также конструкции воздушных подвесных переходов трубопроводов и легких висячих мостов. Даны основные разрезы и планы сооружений, конструкции наиболее важных узлов и элементов. Приведены сведения по расходу материалов, трудозатратам, способам монтажа и расчету конструкций.
Эта книга — репринт оригинального издания (издательство "Стройиздат", 1981 год), созданный на основе электронной копии высокого разрешения, которую очистили и обработали вручную, сохранив структуру и орфографию оригинального издания. Редкие, забытые и малоизвестные книги, изданные с петровских времен до наших дней, вновь доступны в виде печатных книг.
Характеристики
Язык
Русский
Формат
205x280
Период издания оригинала
1980-1990
Отзывы
Отзывов еще никто не оставлял
