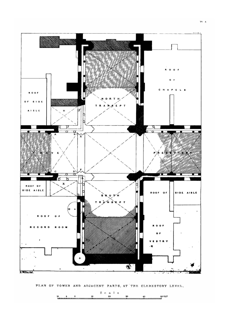
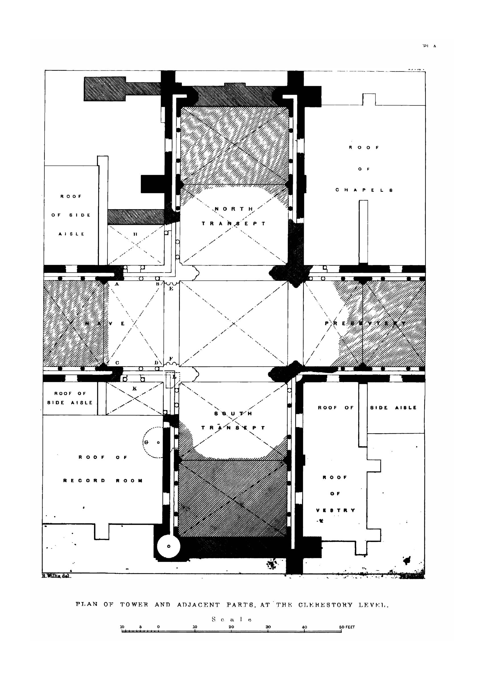
Описание
Характеристики
Отзывы
Описание
Печатная книга «The Architectural History of Chichester Cathedral, With an Introductory Essay On the Fall of the Tower and Spire» в мягкой обложке, язык - английский. В книге 232 страниц, она напечатана на белой офсетной бумаге плотностью 80 г/м². Формат издания — 205x280 мм. Все книги аккуратно упаковываем в прочный трёхслойный непрозрачный картонный конверт.
Эта книга — репринт оригинального издания (издательство "Chichester", 1861 год), созданный на основе электронной копии высокого разрешения, которую очистили и обработали вручную, сохранив структуру и орфографию оригинального издания. Редкие, забытые и малоизвестные книги, изданные с петровских времен до наших дней, вновь доступны в виде печатных книг.
Характеристики
Язык
Английский
Формат
205x280
Период издания оригинала
1850-1900
Отзывы
Отзывов еще никто не оставлял
